Volkswagen Workshop Service and Repair Manuals
HOME
FEATURES
MENU
INDEX
ABOUT US
Diagram Information and Instructions|Page 6572 >
< Diagram Information and Instructions
Jetta L4-1781cc 1.8L SOHC (ACC) Can (1995)
Windows and Glass
Sensors and Switches - Windows and Glass
Power Window Switch / Diagrams / Diagram Information and Instructions
Page 6571
Page 2
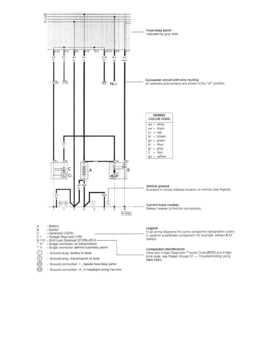
How to Use Track Diagrams
Windows and Glass
Sensors and Switches - Windows and Glass
Power Window Switch / Diagrams / Diagram Information and Instructions
Page 6571
Diagram Information and Instructions|Page 6572 >
< Diagram Information and Instructions