Volkswagen Workshop Service and Repair Manuals
HOME
FEATURES
MENU
INDEX
ABOUT US
Diagram Information and Instructions|Page 5324 >
< Diagram Information and Instructions
Passat GLS V6 V6-2.8L (ATQ) (2001)
Powertrain Management
Computers and Control Systems
Transmission Position Switch/Sensor, A/T / Component Information
Diagrams / Diagram Information and Instructions
Page 5323
Page 2
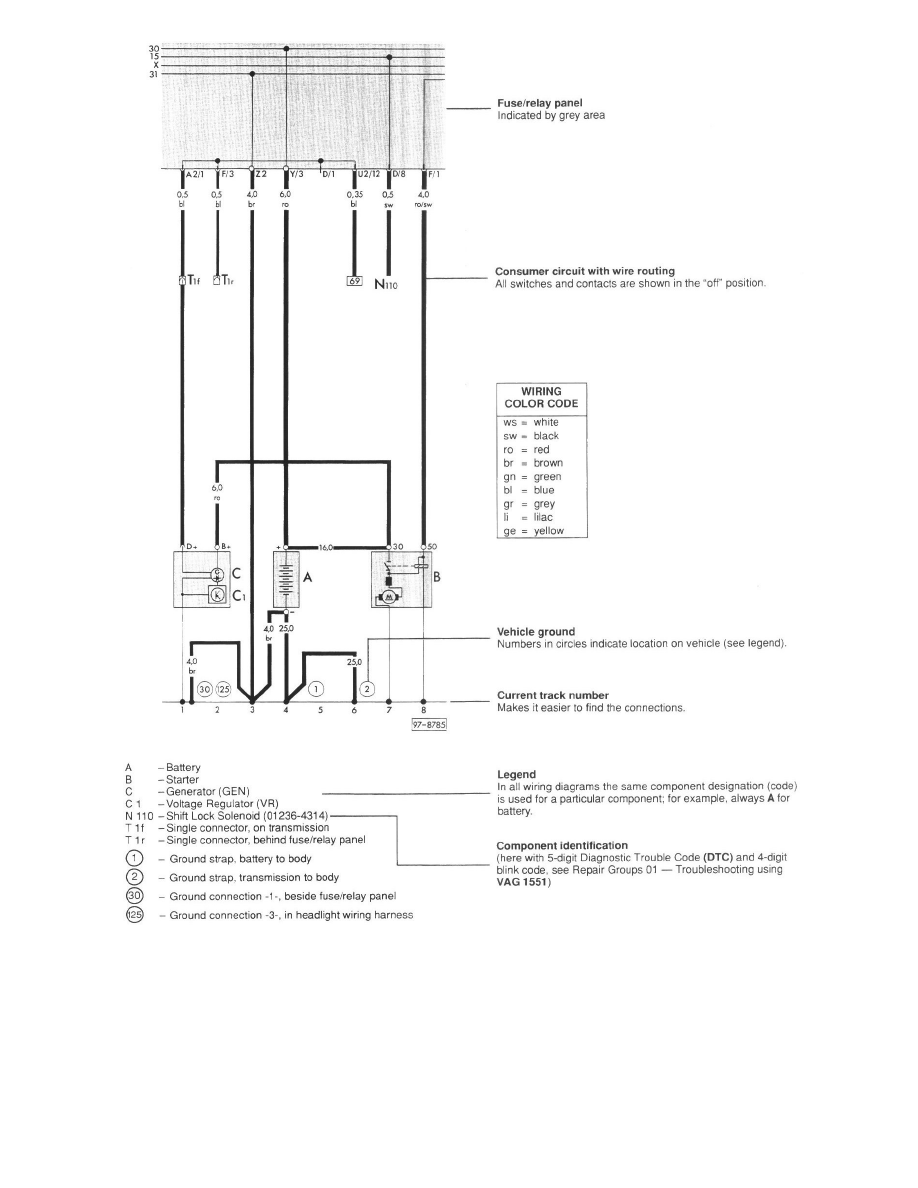
How to Use Track Diagrams
Powertrain Management
Computers and Control Systems
Transmission Position Switch/Sensor, A/T / Component Information
Diagrams / Diagram Information and Instructions
Page 5323
Diagram Information and Instructions|Page 5324 >
< Diagram Information and Instructions