Volkswagen Workshop Service and Repair Manuals
HOME
FEATURES
MENU
INDEX
ABOUT US
Diagram Information and Instructions|Page 5297 >
< Diagram Information and Instructions
Passat GLS Wagon V6 V6-2.8L (ATQ) (2001)
Powertrain Management
Computers and Control Systems
Sensors and Switches - Computers and Control Systems
Vehicle Speed Sensor / Component Information
Diagrams / Diagram Information and Instructions
Page 5296
Page 2
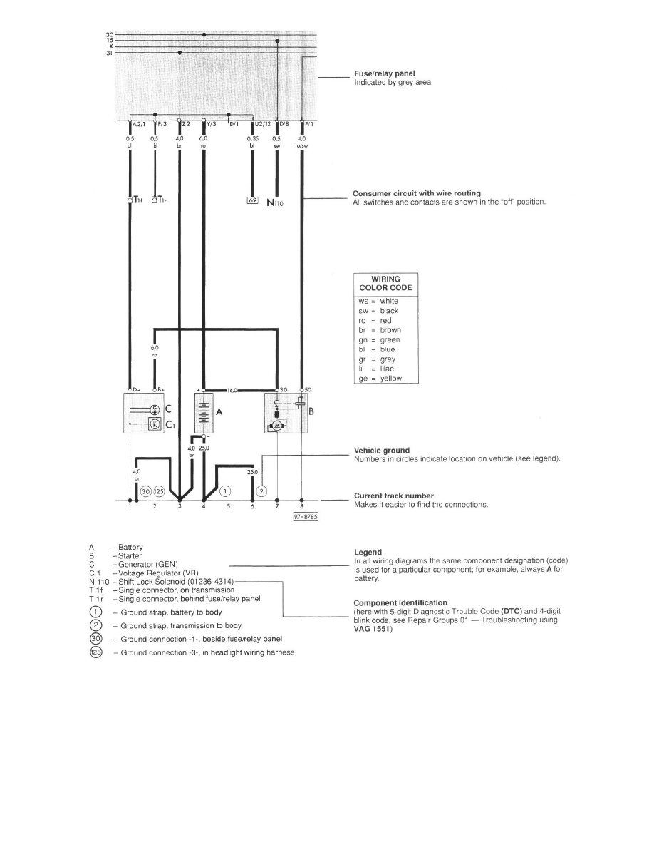
How to Use Track Diagrams
Powertrain Management
Computers and Control Systems
Sensors and Switches - Computers and Control Systems
Vehicle Speed Sensor / Component Information
Diagrams / Diagram Information and Instructions
Page 5296
Diagram Information and Instructions|Page 5297 >
< Diagram Information and Instructions