Volkswagen Workshop Service and Repair Manuals
HOME
FEATURES
MENU
INDEX
ABOUT US
Diagram Information and Instructions|Page 1556 >
< Diagram Information and Instructions
Passat GLS Wagon V6 V6-2.8L (ATQ) (2001)
Sensors and Switches
Sensors and Switches - Powertrain Management / Sensors and Switches - Computers and Control Systems
Oxygen Sensor / Component Information
Diagrams / Diagram Information and Instructions
Page 1555
Page 2
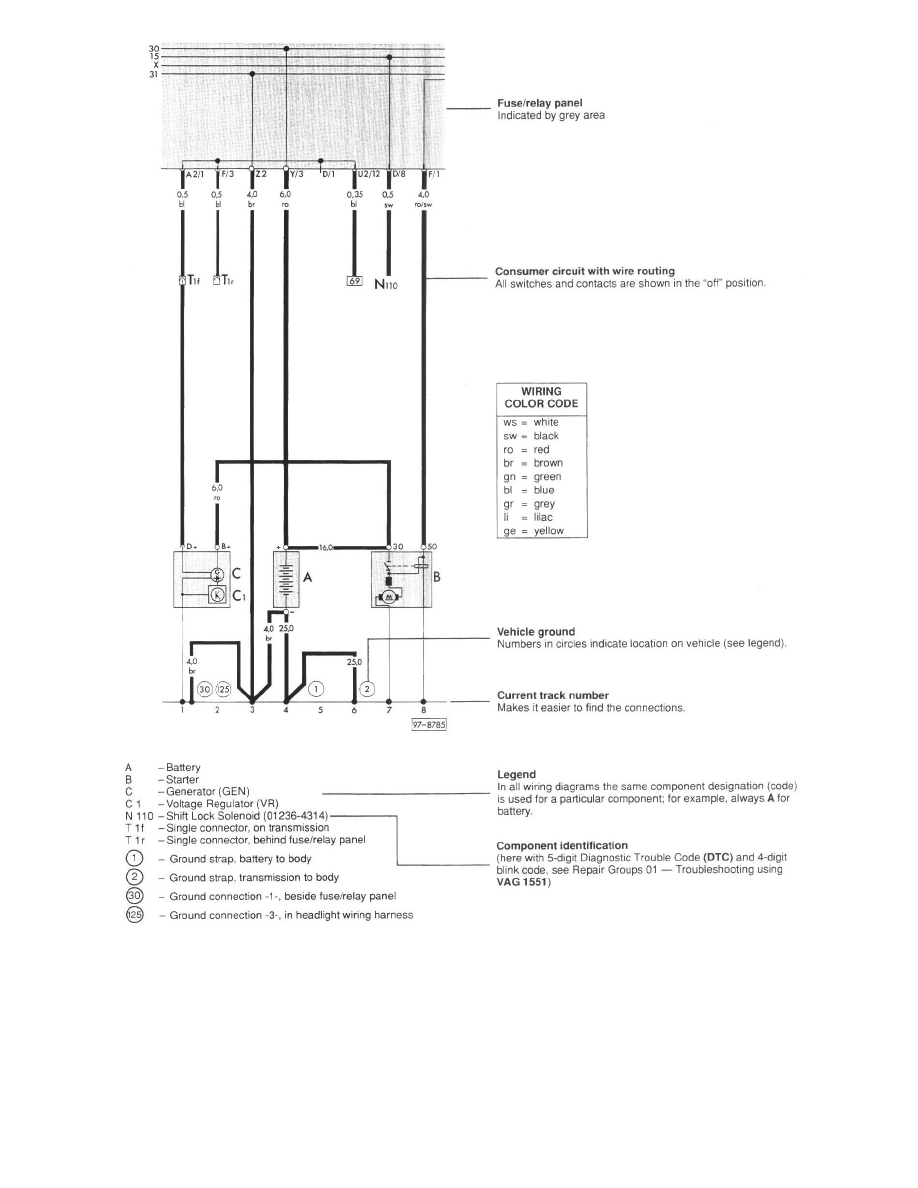
How to Use Track Diagrams
Sensors and Switches
Sensors and Switches - Powertrain Management / Sensors and Switches - Computers and Control Systems
Oxygen Sensor / Component Information
Diagrams / Diagram Information and Instructions
Page 1555
Diagram Information and Instructions|Page 1556 >
< Diagram Information and Instructions