Volkswagen Workshop Service and Repair Manuals
HOME
FEATURES
MENU
INDEX
ABOUT US
Diagram Information and Instructions|Page 11499 >
< Diagram Information and Instructions
Passat GLX Wagon V6 V6-2.8L (ATQ) (2001)
Instrument Panel, Gauges and Warning Indicators
Outside Temperature Display / Outside Temperature Display Sensor / Component Information
Diagrams / Diagram Information and Instructions
Page 11498
Page 2
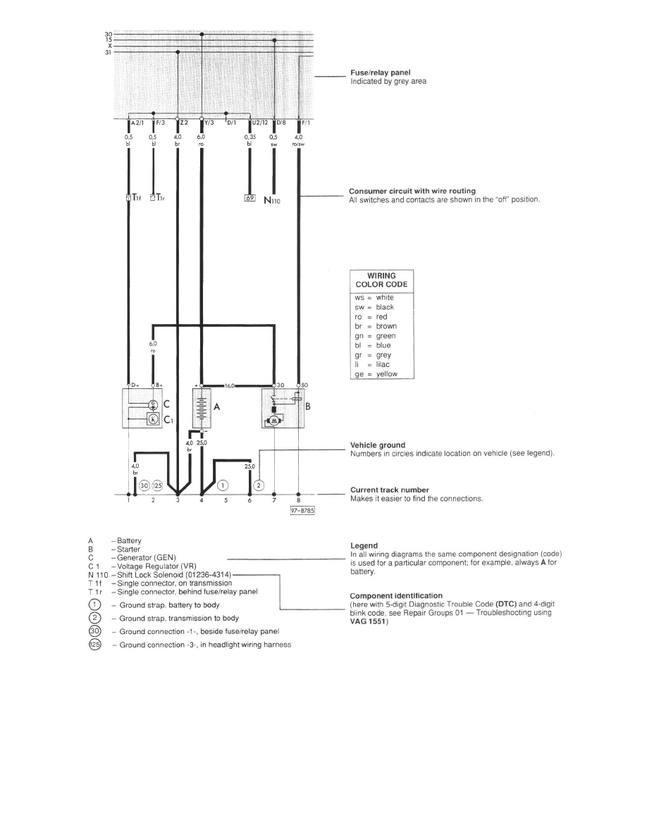
How to Use Track Diagrams
Instrument Panel, Gauges and Warning Indicators
Outside Temperature Display / Outside Temperature Display Sensor / Component Information
Diagrams / Diagram Information and Instructions
Page 11498
Diagram Information and Instructions|Page 11499 >
< Diagram Information and Instructions