Volkswagen Workshop Service and Repair Manuals
HOME
FEATURES
MENU
INDEX
ABOUT US
Diagram Information and Instructions|Page 11546 >
< Diagram Information and Instructions
Passat Sedan L4-1781cc 1.8L DOHC Turbo (ATW) (2000)
Lighting and Horns
Relays and Modules - Lighting and Horns
Fog/Driving Lamp Relay / Component Information
Diagrams / Diagram Information and Instructions
Page 11545
Page 2
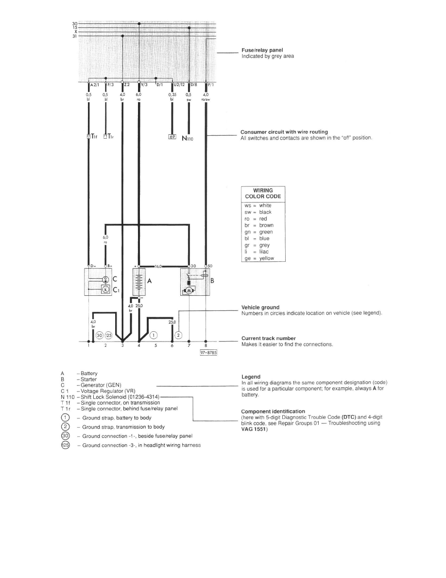
How to Use Track Diagrams
Lighting and Horns
Relays and Modules - Lighting and Horns
Fog/Driving Lamp Relay / Component Information
Diagrams / Diagram Information and Instructions
Page 11545
Diagram Information and Instructions|Page 11546 >
< Diagram Information and Instructions