Volkswagen Workshop Service and Repair Manuals
HOME
FEATURES
MENU
INDEX
ABOUT US
Diagram Information and Instructions|Page 5856 >
< Diagram Information and Instructions
Passat Sedan L4-1781cc 1.8L Turbo (AEB) (1999)
Powertrain Management
Fuel Delivery and Air Induction
Fuel Tank
Fuel Gauge Sender / Component Information
Diagrams / Diagram Information and Instructions
Page 5855
Page 2
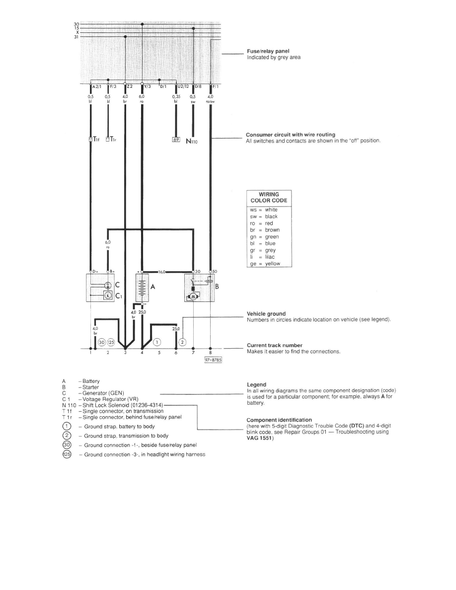
How to Use Track Diagrams
Powertrain Management
Fuel Delivery and Air Induction
Fuel Tank
Fuel Gauge Sender / Component Information
Diagrams / Diagram Information and Instructions
Page 5855
Diagram Information and Instructions|Page 5856 >
< Diagram Information and Instructions