volkswagen Workshop Repair Guides

Volkswagen Workshop Service and Repair Manuals

Diagram Information and Instructions|Page 5667 > < Diagram Information and Instructions|Page 5665
Page 5
background image

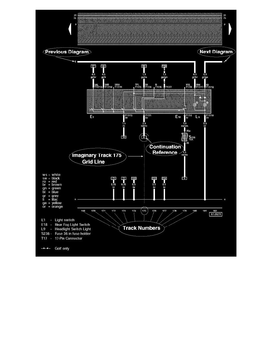
WHAT ARE TRACKS?

Tracks are navigational aids, like the grid lines on a map, but they are invisible on the diagrams. They are only identified by numbers at the bottom of the
diagram.

The diagram wires/circuits are laid out over these imaginary vertical lines, and each diagram is identified by the range of tracks it is laid over, not by the
diagram's contents (i.e. Track 1-14, Track 15-28, and so on).

HOW DO THE WIRES/CIRCUITS WORK WITH THE TRACKS?

Wires/Circuits that do not originate/terminate on the same diagram will have a notation of where they are coming from/going to at either end.

Wires/Circuits entering/leaving the diagram in a horizontal direction will pick up again on the previous/next diagram in the series.

However, wires/circuits traveling the diagram in a vertical direction are following the tracks, and when they enter/leave a diagram they could be skipping

Diagram Information and Instructions|Page 5667 > < Diagram Information and Instructions|Page 5665