Volkswagen Workshop Service and Repair Manuals
HOME
FEATURES
MENU
INDEX
ABOUT US
Diagram Information and Instructions|Page 3876 >
< Diagram Information and Instructions
Passat Syncro Sedan V6-2771cc 2.8L DOHC (AHA) (1999)
Powertrain Management
Computers and Control Systems
Intake Air Temperature Sensor / Component Information
Diagrams / Diagram Information and Instructions
Page 3875
Page 2
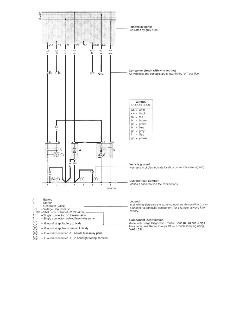
How to Use Track Diagrams
Powertrain Management
Computers and Control Systems
Intake Air Temperature Sensor / Component Information
Diagrams / Diagram Information and Instructions
Page 3875
Diagram Information and Instructions|Page 3876 >
< Diagram Information and Instructions