Volkswagen Workshop Service and Repair Manuals
HOME
FEATURES
MENU
INDEX
ABOUT US
Diagram Information and Instructions|Page 5795 >
< Diagram Information and Instructions
Passat Syncro Wagon V6-2.8L (ATQ) (2000)
Powertrain Management
Fuel Delivery and Air Induction
Relays and Modules - Fuel Delivery and Air Induction
Fuel Pump Relay / Component Information
Diagrams / Diagram Information and Instructions
Page 5794
Page 2
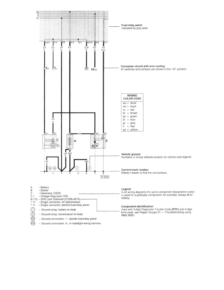
How to Use Track Diagrams
Powertrain Management
Fuel Delivery and Air Induction
Relays and Modules - Fuel Delivery and Air Induction
Fuel Pump Relay / Component Information
Diagrams / Diagram Information and Instructions
Page 5794
Diagram Information and Instructions|Page 5795 >
< Diagram Information and Instructions