Volkswagen Workshop Service and Repair Manuals
HOME
FEATURES
MENU
INDEX
ABOUT US
Diagram Information and Instructions|Page 578 >
< Diagram Information and Instructions|Page 576
Passat Wagon V6-2792cc 2.8L DOHC (1994)
Sensors and Switches
Sensors and Switches - HVAC
Evaporator Temperature Sensor / Switch / Component Information
Diagrams / Diagram Information and Instructions
Page 577
Page 5
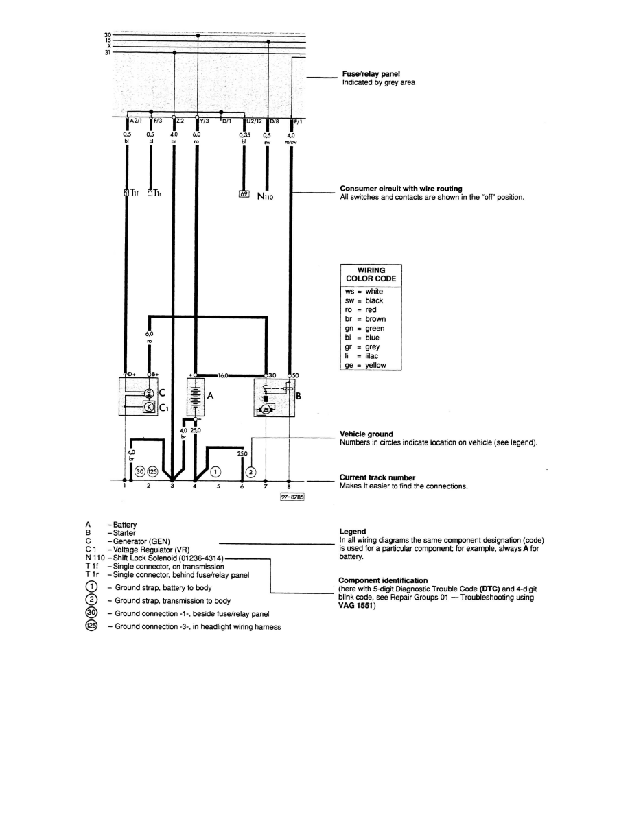
Wiring Diagram Layout
How To Read Wiring Diagrams
Sensors and Switches
Sensors and Switches - HVAC
Evaporator Temperature Sensor / Switch / Component Information
Diagrams / Diagram Information and Instructions
Page 577
Diagram Information and Instructions|Page 578 >
< Diagram Information and Instructions|Page 576