Buick Riviera V6 38L Workshop Service and Repair Manuals
HOME
FEATURES
MENU
INDEX
ABOUT US
Part 1 of 2|Page 4846 >
< Part 1 of 2|Page 4844
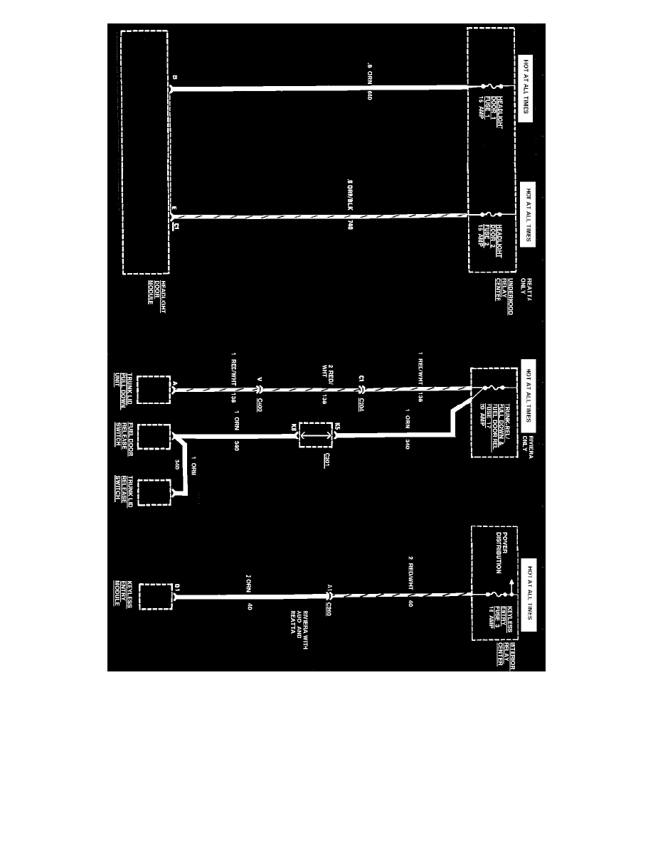
Riviera V6-231 38L VIN C SFI (1989) Starting and Charging Fuse 2 - Page 4845
Starting and Charging
Power and Ground Distribution
Fuse / Component Information
Diagrams
Electrical Diagrams
Fuse 2
Page 4845
Page 1
Fuse Block Details (Fuses 1, 2, 3 & 17)
Starting and Charging
Power and Ground Distribution
Fuse / Component Information
Diagrams
Electrical Diagrams
Fuse 2
Page 4845
Part 1 of 2|Page 4846 >
< Part 1 of 2|Page 4844