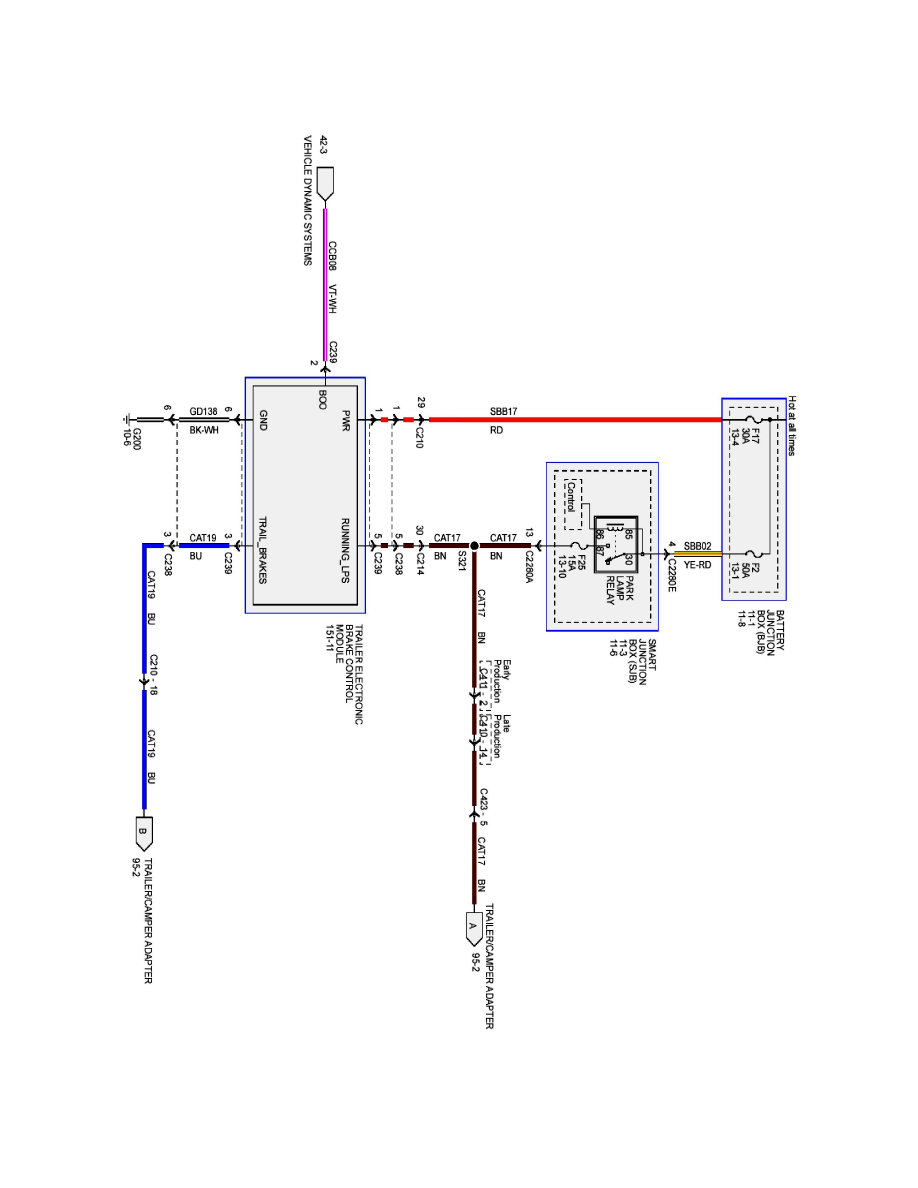
Explorer 2WD V6-4.0L VIN K (2007)
Trailer Connector: Electrical Diagrams
PLEASE NOTE: Some diagrams may appear to be missing because of gaps in the number sequences. These "gaps" are actually for diagrams that do not
apply to the vehicle model selected.
95-1
