Ford Workshop Service and Repair Manuals
HOME
FEATURES
MENU
INDEX
ABOUT US
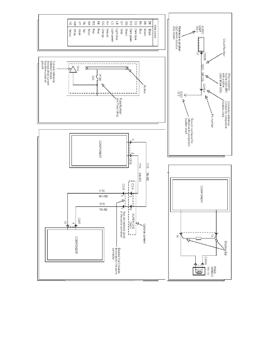
Diagram Information and Instructions|Page 7069 >
< Diagram Information and Instructions|Page 7067
Explorer Sport Trac 4WD V6-4.0L (2009)
Accessories and Optional Equipment
Towing / Trailer System
Trailer Lamps / Diagrams / Diagram Information and Instructions
Page 7068
Page 8
Symbols (Part 3)
Accessories and Optional Equipment
Towing / Trailer System
Trailer Lamps / Diagrams / Diagram Information and Instructions
Page 7068
Diagram Information and Instructions|Page 7069 >
< Diagram Information and Instructions|Page 7067