Ford Workshop Service and Repair Manuals
HOME
FEATURES
MENU
INDEX
ABOUT US
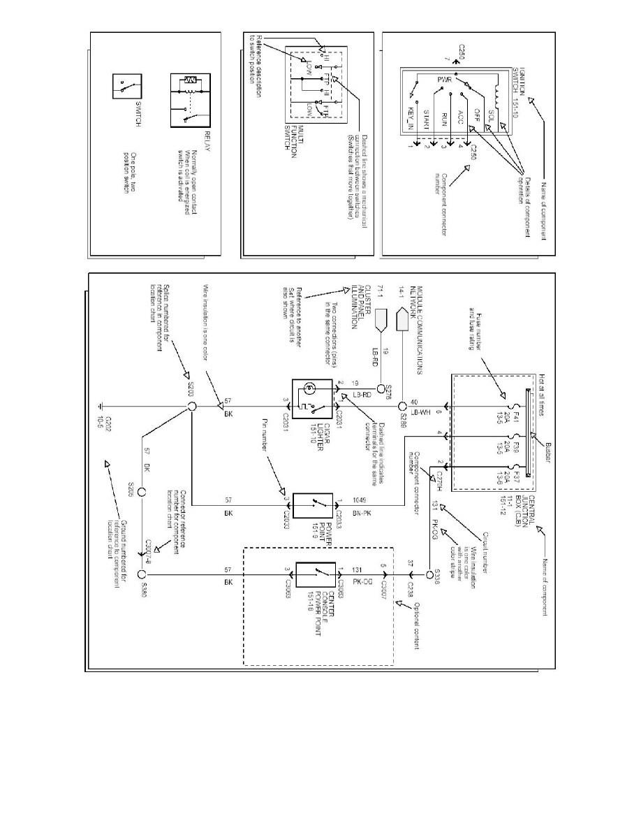
Diagram Information and Instructions|Page 7070 >
< Diagram Information and Instructions|Page 7068
Explorer Sport Trac 4WD V6-4.0L (2009)
Accessories and Optional Equipment
Towing / Trailer System
Trailer Lamps / Diagrams / Diagram Information and Instructions
Page 7069
Page 9
Symbols (Part 4)
Accessories and Optional Equipment
Towing / Trailer System
Trailer Lamps / Diagrams / Diagram Information and Instructions
Page 7069
Diagram Information and Instructions|Page 7070 >
< Diagram Information and Instructions|Page 7068