Kia Workshop Service and Repair Manuals
HOME
FEATURES
MENU
INDEX
ABOUT US
Diagram Information and Instructions|Page 2668 >
< Rear Window Defogger|Page 2665
Rondo L4-2.4L (2007)
Powertrain Management
Relays and Modules - Powertrain Management / Relays and Modules - Computers and Control Systems / Body Control Module / Component Information
Diagrams
Diagram Information and Instructions
Page 1
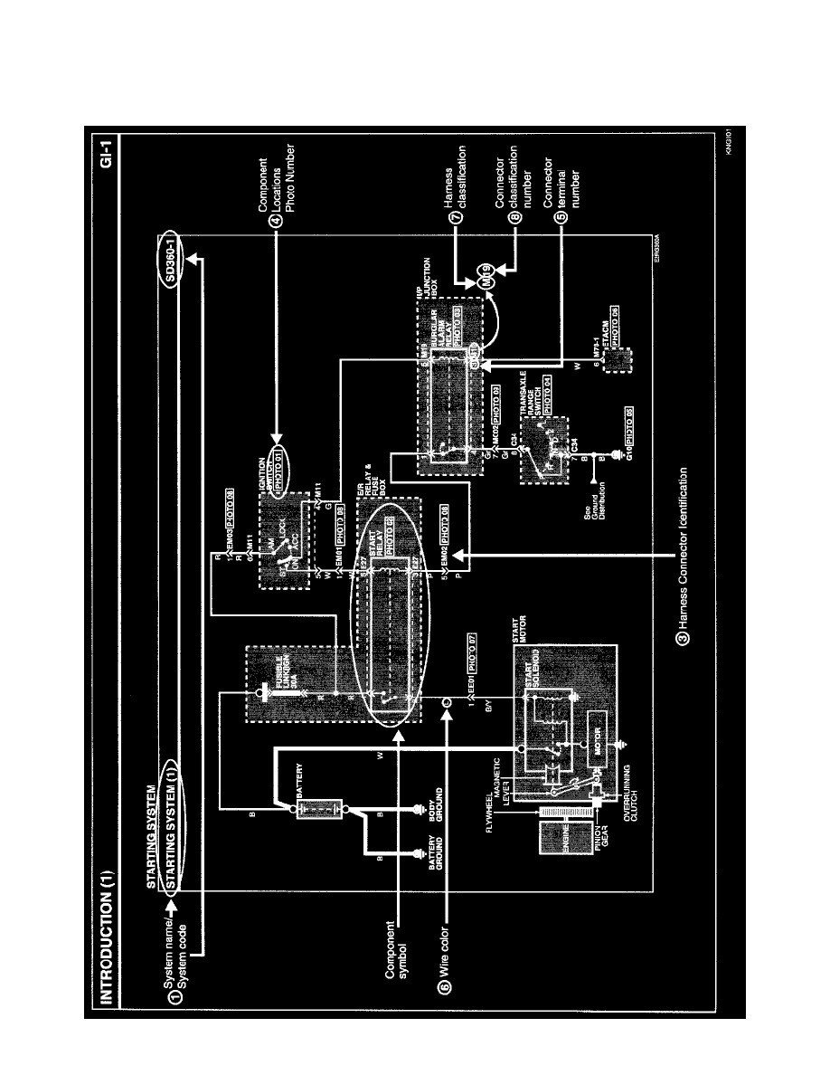
Body Control Module: Diagram Information and Instructions
Schematic Diagrams
INTRODUCTION
Powertrain Management
Relays and Modules - Powertrain Management / Relays and Modules - Computers and Control Systems / Body Control Module / Component Information
Diagrams
Diagram Information and Instructions
Diagram Information and Instructions|Page 2668 >
< Rear Window Defogger|Page 2665