S 430 4MATIC (220.183) V8-4.3L (113.948) (2003)
Note: (USA) Engine 112.946 with code 929 Flexible Fuel Vehicle (FFV)
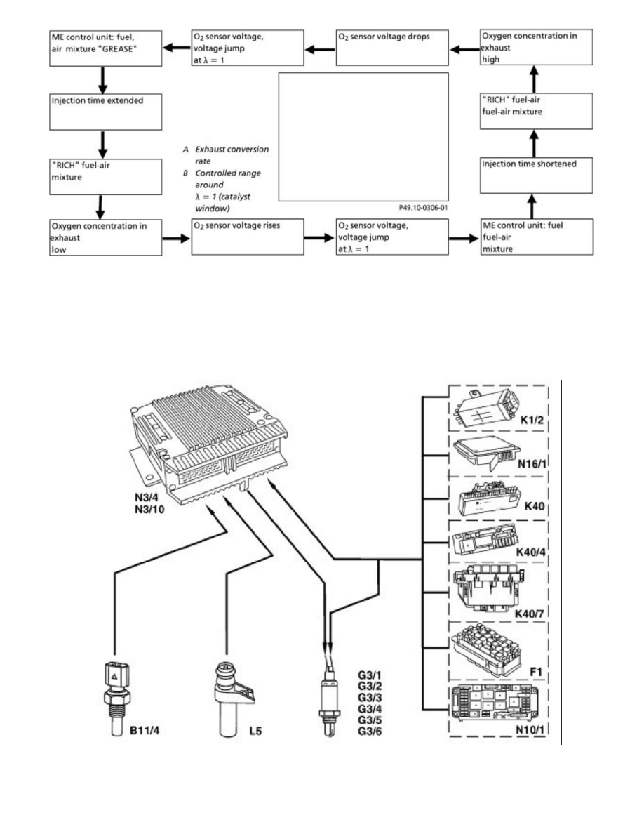
After each fueling the Ethanel portion is determined by means of the O2sensor voltage upstream TWC in the fuel tank. If for example Ethanol was
refueled, the mixture is at first too lean (oxygen sensor voltage jumps back to 0 Volt). The lambda control reacts if the mixture to be enriched until
after fueling lambda = 1 is achieved again.
O2-Sondenheizung Function
O2-Sondenheizung Function
Shown on Engine 119
B11/4
Coolant temperature sensor
F1
Fuse and relay module Model 163
G3/1
O2 sensor downstream of TWC Engine 111, 104 (USA) and EURO3/4
