Toyota Workshop Service and Repair Manuals
HOME
FEATURES
MENU
INDEX
ABOUT US
Blower Motor Relay|Locations|Page 4234 >
< Auxiliary Water Pump Relay|Locations
Prius L4-1.5L (1NZ-FXE) (Hybrid) (2003)
Heating and Air Conditioning
Relays and Modules - HVAC
Blower Motor Relay
Component Information
Locations
Page 1
Blower Motor Relay: Locations
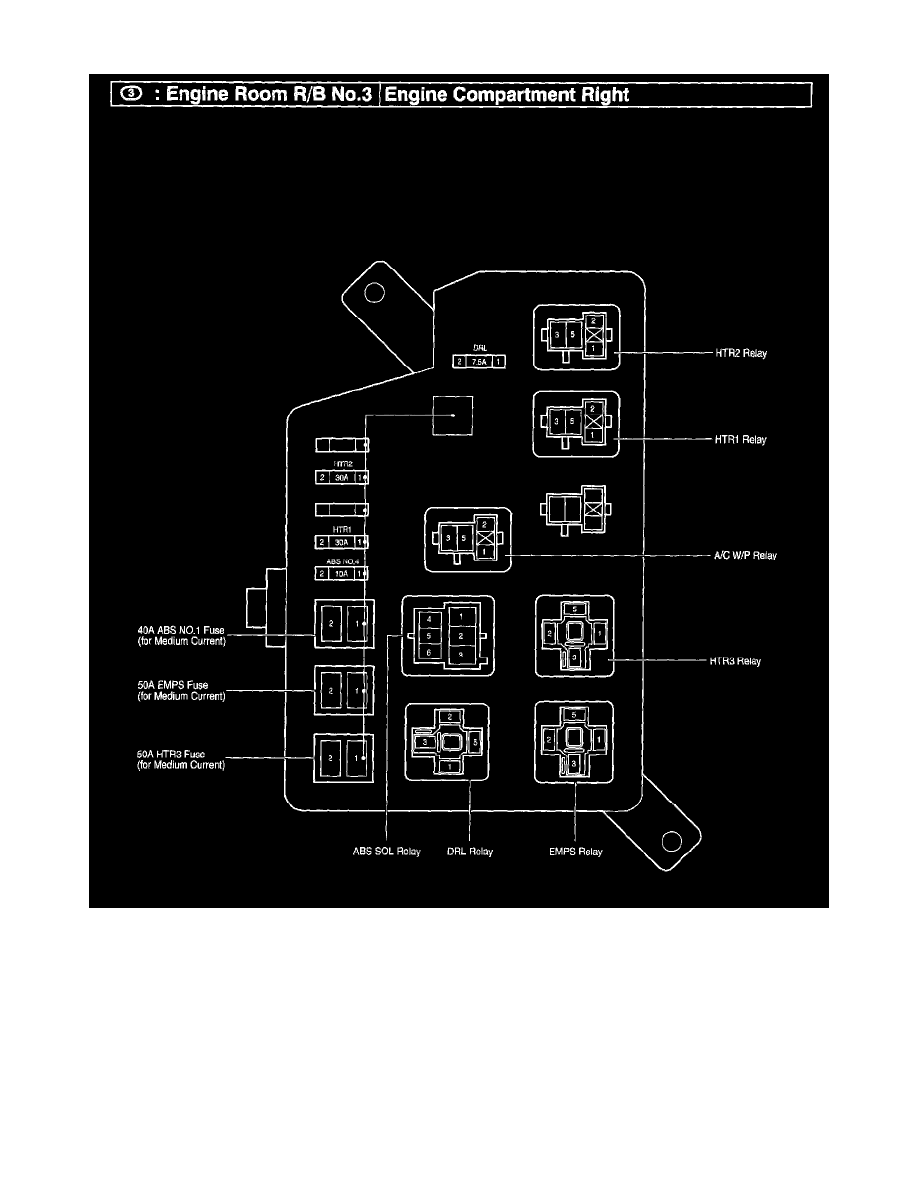
Engine Room R/B No.3 - Engine Compartment Right
Heating and Air Conditioning
Relays and Modules - HVAC
Blower Motor Relay
Component Information
Locations
Blower Motor Relay|Locations|Page 4234 >
< Auxiliary Water Pump Relay|Locations