Toyota Workshop Service and Repair Manuals
HOME
FEATURES
MENU
INDEX
ABOUT US
Power and Ground Distribution|Locations|Page 6681 >
< Electronic Noise Suppressor|Diagrams|Page 6677
Tundra 4WD V8-4.6L (1UR-FE) (2010)
Power and Ground Distribution
Fuse
Component Information
Locations
Page 1
Fuse: Locations
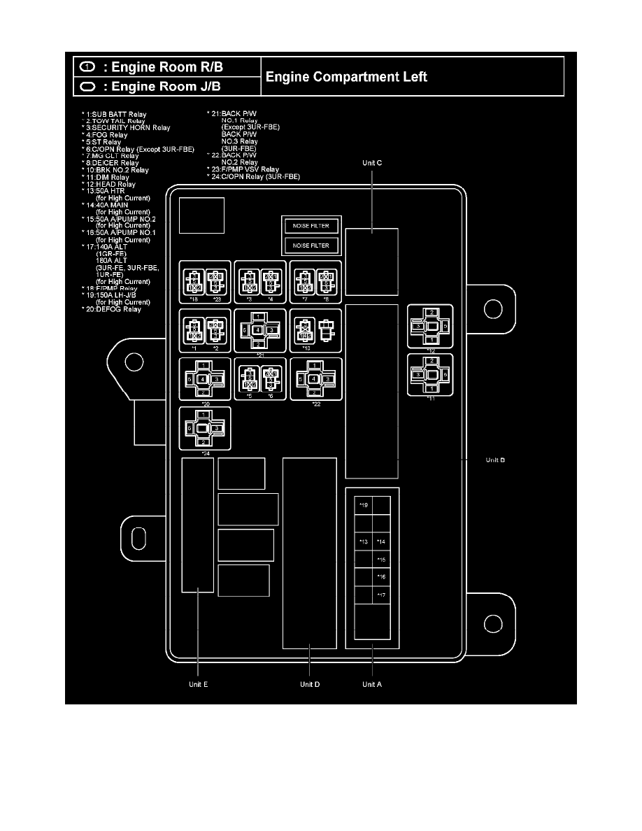
Engine Room R/B, J/B - Engine Compartment Left
Power and Ground Distribution
Fuse
Component Information
Locations
Power and Ground Distribution|Locations|Page 6681 >
< Electronic Noise Suppressor|Diagrams|Page 6677