Toyota Workshop Service and Repair Manuals
HOME
FEATURES
MENU
INDEX
ABOUT US
Diagram Information and Instructions|Page 7555 >
< Diagram Information and Instructions|Page 7553
Sequoia 2WD V8-4.7L (2UZ-FE) (2003)
Lighting and Horns
License Plate Lamp / Diagrams / Diagram Information and Instructions
Page 7554
Page 1
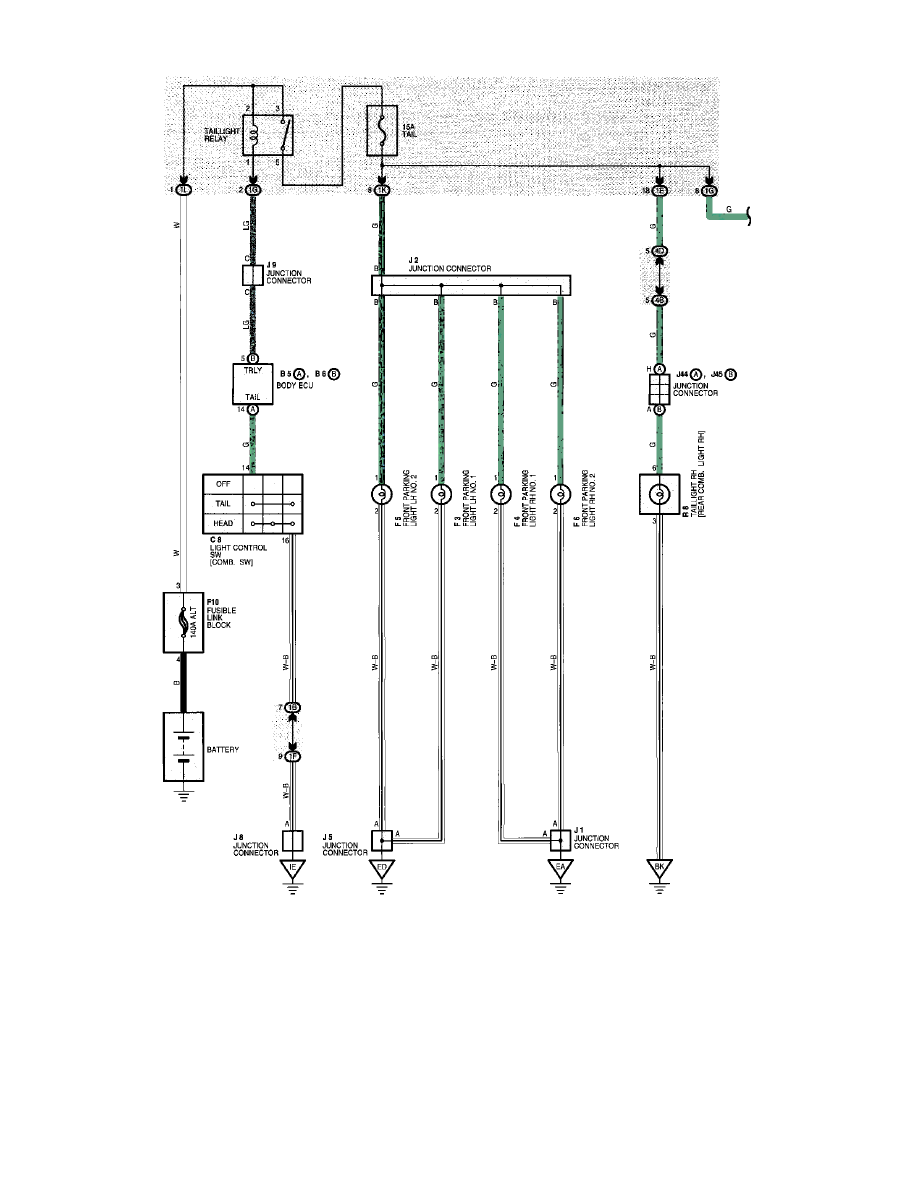
License Plate Lamp: Electrical Diagrams
Taillight Part 1
Lighting and Horns
License Plate Lamp / Diagrams / Diagram Information and Instructions
Page 7554
Diagram Information and Instructions|Page 7555 >
< Diagram Information and Instructions|Page 7553