Toyota Workshop Service and Repair Manuals
HOME
FEATURES
MENU
INDEX
ABOUT US
Diagram Information and Instructions|Page 7556 >
< Diagram Information and Instructions|Page 7554
Sequoia 2WD V8-4.7L (2UZ-FE) (2003)
Lighting and Horns
License Plate Lamp / Diagrams / Diagram Information and Instructions
Page 7555
Page 2
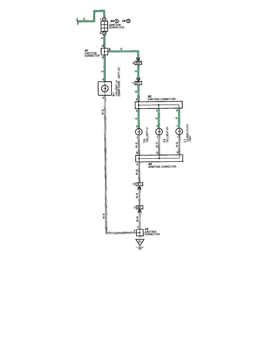
Taillight Part 2
Lighting and Horns
License Plate Lamp / Diagrams / Diagram Information and Instructions
Page 7555
Diagram Information and Instructions|Page 7556 >
< Diagram Information and Instructions|Page 7554